Aller à :

  • Aller à la recherche
  • Aller au menu principal
  • Aller au contenu
0
  • Accueil
  • Acheter
  • Louer
  • vendre
  • gestion locative
  • Syndic
  • Qui sommes-nous?
  • Contact
0
Se connecter
Copropriétaires Propriétaires et locataires
  • Acheter
  • Louer à l'année
Créez votre alerte e-mail
Dans un rayon de
Loyer
Mini €
Maxi €

    Faites estimer votre bien par un professionnel

    Estimer votre bien
    1. Agence immobilière Marseille 8
    2. Location
    3. Appartement
    4. T2
    5. Appartement

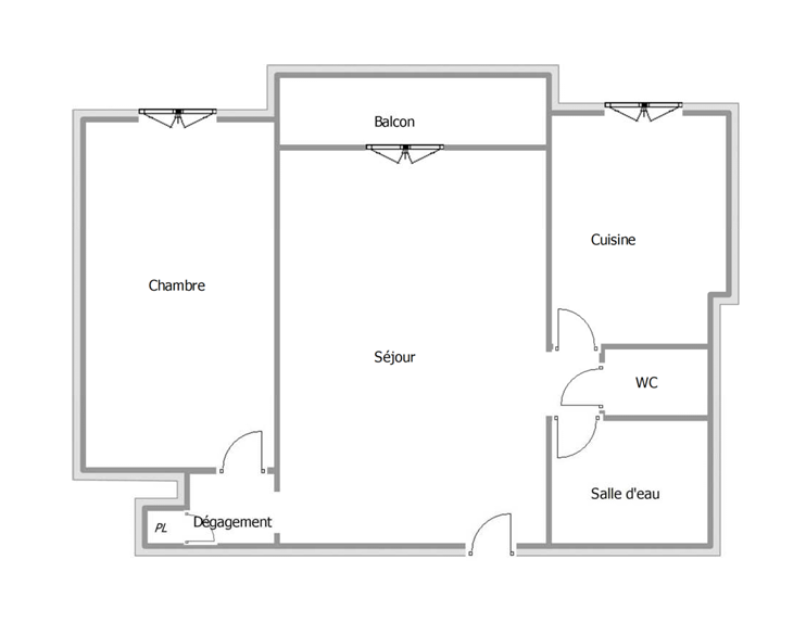
    Appartement (13009)

    740 € CC*

    * Charges comprises

    Réf : LO018260442

    Présentation

    Marseille 13009 - Square Michelet - Rond Point du Prado : Envie de vivre dans un quartier recherché de Marseille ? Cet appartement situé au Square Michelet n'attend plus que vous !

    Dès l'entrée, laissez-vous séduire par un séjour qui s'ouvre sur un agréable balcon . Imaginez vos petits-déjeuners au soleil ou vos soirées détente en extérieur? un vrai plus au quotidien !
    La chambre, vous offre un espace nuit paisible. La cuisine indépendante vous permet de cuisiner en toute tranquillité. Vous profitez également d'une salle d'eau et d'un WC séparé pour plus de confort.

    Situé dans une résidence calme, cet appartement combine tranquillité et proximité : commerces, transports et commodités sont accessibles en quelques minutes seulement

    Parfait pour une personne seule ou un couple, ce bien est une belle opportunité à ne pas manquer !

    Contactez-nous rapidement au 06 15 01 37 47 pour organiser une visite ? coup de c?ur assuré !

    Superficie habitable : 40m²
    Loyer : 740€/mois dont 100€/mois de provisions sur charges (provision avec régularisation annuelle) et de 25€/mois de taxe d'ordures ménagères (provision avec régularisation annuelle).
    Dépôt de garantie : 615€
    Honoraires charge locataire : 520€ TTC dont 120€ TTC pour l'état des lieux

    Diagnostic de Performance Énergétique classe D
    Montant estimé des dépenses annuelles d'énergie pour un usage standard : entre 430€ TTC et 640€ TTC par an.
    Date de référence des prix de l'énergie pour établir cette estimation au 01/01/2021.

    Marseille est située en zone tendue.
    Les informations sur les risques auxquels ce bien est exposé sont disponibles sur le site Géorisques : www.georisques.gouv.fr
    IMPORTANT : Pour toute demande d'information ou pour déposer votre dossier, merci de nous envoyer un mail depuis l'annonce. Vous recevrez un formulaire à remplir, à réception, nous ne manquerons pas de revenir vers vous.

    Les infos
    essentielles

    DPE GES

    Les + du bien

    Général

    Caractérisque Valeurs
    Code postal 13009
    Surface habitable (m²) 40 m²
    Nombre de chambre(s) 1
    Nombre de pièces 2
    Meublé NON
    Etage 7
    Ascenseur OUI

    Détails +

    Caractérisque Valeurs
    Nb de salle d'eau 1
    Mode de chauffage Autre
    Type de chauffage Autre
    Format de chauffage Collectif
    Balcon OUI

    Copropriété

    Caractérisque Valeurs
    Copropriété OUI

    Financier

    Caractérisque Valeurs
    Loyer CC* / mois 740 €
    Honoraires TTC charge locataire 520 €
    Dont état des lieux 120 €
    Dépôt de garantie TTC 615 €
    Charges locatives (provision donnant lieu à régularisation annuelle) 125 €

    Quartier

    • Commerces et santé
    • Loisirs
    • Ecoles
    • Transports
    • Pratique

    * champs obligatoires

    Les informations recueillies sur ce formulaire sont enregistrées dans un fichier informatisé par La Boite Immo agissant comme Sous-traitant du traitement pour la gestion de la clientèle/prospects de l'Agence / du Réseau qui reste Responsable du Traitement de vos Données personnelles. La base légale du traitement repose sur l'intérêt légitime de l'Agence / du Réseau. Elles sont conservées jusqu'à demande de suppression et sont destinées à l'Agence / au Réseau. Conformément à la loi « informatique et libertés », vous disposez des droits d’accès, de rectification, d’effacement, d’opposition, de limitation et de portabilité de vos données. Vous pouvez retirer votre consentement à tout moment en contactant directement l’Agence / Le Réseau. Consultez le site https://cnil.fr/fr pour plus d’informations sur vos droits. Si vous estimez, après avoir contacté l'Agence / le Réseau, que vos droits « Informatique et Libertés » ne sont pas respectés, vous pouvez adresser une réclamation à la CNIL. Nous vous informons de l’existence de la liste d'opposition au démarchage téléphonique « Bloctel », sur laquelle vous pouvez vous inscrire ici : https://www.bloctel.gouv.fr Dans le cadre de la protection des Données personnelles, nous vous invitons à ne pas inscrire de Données sensibles dans le champ de saisie libre.
    Ce site est protégé par reCAPTCHA, les Politiques de Confidentialité et les Conditions d'Utilisation de Google s'appliquent.

    Nos outils
    Imprimer Imprimer
    Partager le bien
    Calculatrice financière

    * Champ obligatoire

    Partager l'annonce

    * champs obligatoires

    Les informations recueillies sur ce formulaire sont enregistrées dans un fichier informatisé par La Boite Immo agissant comme Sous-traitant du traitement pour la gestion de la clientèle/prospects de l'Agence / du Réseau qui reste Responsable du Traitement de vos Données personnelles. La base légale du traitement repose sur l'intérêt légitime de l'Agence / du Réseau. Elles sont conservées jusqu'à demande de suppression et sont destinées à l'Agence / au Réseau. Conformément à la loi « informatique et libertés », vous disposez des droits d’accès, de rectification, d’effacement, d’opposition, de limitation et de portabilité de vos données. Vous pouvez retirer votre consentement à tout moment en contactant directement l’Agence / Le Réseau. Consultez le site https://cnil.fr/fr pour plus d’informations sur vos droits. Si vous estimez, après avoir contacté l'Agence / le Réseau, que vos droits « Informatique et Libertés » ne sont pas respectés, vous pouvez adresser une réclamation à la CNIL. Nous vous informons de l’existence de la liste d'opposition au démarchage téléphonique « Bloctel », sur laquelle vous pouvez vous inscrire ici : https://www.bloctel.gouv.fr Dans le cadre de la protection des Données personnelles, nous vous invitons à ne pas inscrire de Données sensibles dans le champ de saisie libre.
    Ce site est protégé par reCAPTCHA, les Politiques de Confidentialité et les Conditions d'Utilisation de Google s'appliquent.

    Partager avec vos proches

    Facebook Facebook
    Messenger Messenger
    Twitter Twitter
    WhatsApp WhatsApp
    LinkedIn LinkedIn
    Copier le lien Copier le lien
    Détail des diagnostics énergétiques
    DPE GES
    DPE en cours
    Autres biens

    Ces biens peuvent aussi vous intéresser

    Appartement

    Meublé

    (13002)
    Voir le bien
    Appartement

    Appartement

    (13009)
    Voir le bien
    Contacter l'agence

    Remplissez ce formulaire, nous ferons de notre mieux pour vous répondre dans les meilleurs délais.

    Guis Immobilier
    04 96 11 22 88
    E-mail fx.guis@guisimmobilier.fr

    2B BD LATIL 13008 Marseille

    Agence Lord Duveen
    04 96 11 22 81
    E-mail contact@guisimmobilier.fr

    Agence 8 ème
    33 rue Lord Duveen 13008 Marseille

    TRAD_MELTEM_voscoordonnees
    TRAD_MELTEM_voredemande
    Règlementation

    * Champ obligatoire

    Les informations recueillies sur ce formulaire sont enregistrées dans un fichier informatisé par La Boite Immo agissant comme Sous-traitant du traitement pour la gestion de la clientèle/prospects de l'Agence / du Réseau qui reste Responsable du Traitement de vos Données personnelles. La base légale du traitement repose sur l'intérêt légitime de l'Agence / du Réseau. Elles sont conservées jusqu'à demande de suppression et sont destinées à l'Agence / au Réseau. Conformément à la loi « informatique et libertés », vous disposez des droits d’accès, de rectification, d’effacement, d’opposition, de limitation et de portabilité de vos données. Vous pouvez retirer votre consentement à tout moment en contactant directement l’Agence / Le Réseau. Consultez le site https://cnil.fr/fr pour plus d’informations sur vos droits. Si vous estimez, après avoir contacté l'Agence / le Réseau, que vos droits « Informatique et Libertés » ne sont pas respectés, vous pouvez adresser une réclamation à la CNIL. Nous vous informons de l’existence de la liste d'opposition au démarchage téléphonique « Bloctel », sur laquelle vous pouvez vous inscrire ici : https://www.bloctel.gouv.fr Dans le cadre de la protection des Données personnelles, nous vous invitons à ne pas inscrire de Données sensibles dans le champ de saisie libre.
    Ce site est protégé par reCAPTCHA, les Politiques de Confidentialité et les Conditions d'Utilisation de Google s'appliquent.

    Se connecter
    Espace propriétaire Propriétaires syndic Propriétaires gestion
    Visiter le site Action patrimoine
    Adhérents

    © 2026 | Tous droits réservés | Traduction powered by Google |

    • Nos honoraires
    • Plan du site
    • Mentions légales
    • Partenaires
    • Admin
    • Politique RGPD
    • LinkedIn

    Comme beaucoup, notre site utilise les cookies

    On aimerait vous accompagner pendant votre visite. En poursuivant, vous acceptez l'utilisation des cookies par ce site, afin de vous proposer des contenus adaptés et réaliser des statistiques !

    Paramétrer

    Cookies fonctionnelsCes cookies sont indispensables à la navigation sur le site, pour vous garantir un fonctionnement optimal. Ils ne peuvent donc pas être désactivés.

    Statistiques de visitesPour améliorer votre expérience, on a besoin de savoir ce qui vous intéresse !
    Les données récoltées sont anonymisées.

    ?

    Google Analytics

    En savoir plus
    • Acheter
    • Louer à l'année
    Créez votre alerte e-mail
    Dans un rayon de
      Loyer
      Mini €
      Maxi €
      Surface
      Mini m²
      Maxi m²

      Particularites

      Equipements

      Exposition

      Afficher les biens

      Faites estimer votre bien par un professionnel

      Estimer votre bien