Aller à :

  • Aller à la recherche
  • Aller au menu principal
  • Aller au contenu
0
  • Accueil
  • Acheter
  • Louer
  • vendre
  • gestion locative
  • Syndic
  • Qui sommes-nous?
  • Contact
0
Se connecter
Copropriétaires Propriétaires et locataires
  • Acheter
  • Louer à l'année
Créez votre alerte e-mail
Dans un rayon de
Loyer
Mini €
Maxi €

    Faites estimer votre bien par un professionnel

    Estimer votre bien
    1. Agence immobilière Marseille 8
    2. Location
    3. Toulon
    4. Appartement
    5. T2
    6. Appartement

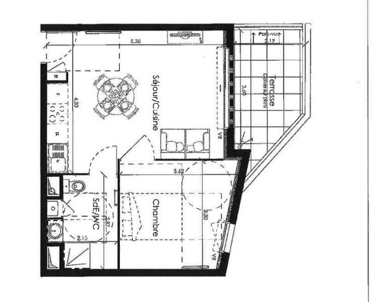
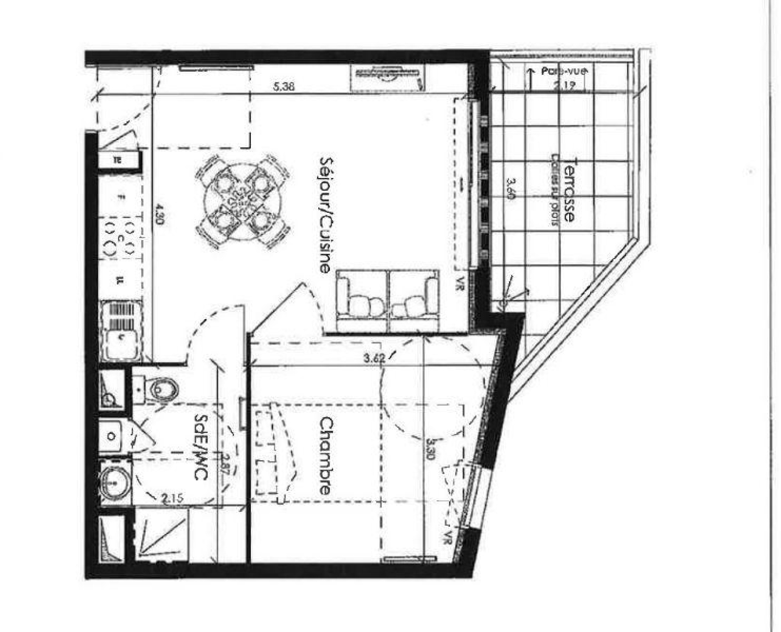
    Appartement Toulon (83000)

    650 € CC*

    * Charges comprises

    Réf : LO018250225

    Présentation

    Toulon 83000 - Avenue de l'Elysée, Résidence Le Patio Julien : Venez découvrir cet agréable appartement de type 2 situé dans une résidence récente, au 5ème étage avec ascenseur.

    Il offre un cadre de vie confortable et pratique, idéalement situé dans le quartier dynamique du Pont du Las à Toulon Ouest.

    L'appartement se compose d'une entrée, d'un séjour qui s'ouvre sur une terrasse, parfaite pour profiter des journées ensoleillées. La cuisine est séparée, offrant un espace fonctionnel pour vos repas. Vous disposerez également d'une chambre, d'une salle d'eau et de WC séparés.

    Pour plus de commodités, un parking privatif est inclus, vous assurant ainsi un stationnement facile et sécurisé. Idéalement situé, cet appartement bénéficie de la proximité immédiate de toutes les commodités essentielles : crèche, écoles, et médiathèque.

    Vous serez également à quelques pas du marché Place Bidouré, le 2ème plus grand et le plus connu de Toulon, ainsi que du complexe omnisport Léo Lagrange, parfait pour les activités sportives et les loisirs. Cet appartement allie confort, praticité et emplacement privilégié. Ne manquez pas cette occasion de vivre dans un quartier animé et bien desservi.

    Superficie habitable : 38m²
    Loyer : 650€/ mois charges comprises dont 50€ de provisions sur charges (provision avec régularisation annuelle)
    Dépôt de garantie : 600€
    Honoraires charge locataire : 494€ TTC dont 114€ TTC pour l'état des lieux.

    Diagnostic de Performance Énergétique classe A
    Montant estimé des dépenses annuelles d'énergie pour un usage standard entre 340€ et 460€ TTC /an.
    Date de référence des prix de l'énergie pour établir cette estimation sur les années 2021,2022,2023.

    Toulon est située en zone tendue.
    Les informations sur les risques auxquels ce bien est exposé sont disponibles sur le site Géorisques : www.georisques.gouv.fr
    IMPORTANT : Pour toute demande d'information ou pour déposer votre dossier, merci de nous envoyer un mail depuis l'annonce. Vous recevrez un formulaire à remplir, à réception, nous ne manquerons pas de revenir vers vous.

    Les infos
    essentielles

    DPE GES

    Les + du bien

    Général

    Caractérisque Valeurs
    Code postal 83000
    Surface habitable (m²) 38 m²
    Nombre de chambre(s) 1
    Nombre de pièces 2
    Meublé NON
    Etage 5
    Ascenseur OUI

    Détails +

    Caractérisque Valeurs
    Nb de salle d'eau 1
    Mode de chauffage Autre
    Type de chauffage Autre
    Format de chauffage Individuel
    Balcon NON
    Terrasse OUI

    Copropriété

    Caractérisque Valeurs
    Copropriété OUI

    Financier

    Caractérisque Valeurs
    Loyer CC* / mois 650 €
    Honoraires TTC charge locataire 494 €
    Dont état des lieux 114 €
    Dépôt de garantie TTC 600 €
    Charges locatives (provision donnant lieu à régularisation annuelle) 50 €

    Quartier

    • Commerces et santé
    • Loisirs
    • Ecoles
    • Transports
    • Pratique

    * champs obligatoires

    Les informations recueillies sur ce formulaire sont enregistrées dans un fichier informatisé par La Boite Immo agissant comme Sous-traitant du traitement pour la gestion de la clientèle/prospects de l'Agence / du Réseau qui reste Responsable du Traitement de vos Données personnelles. La base légale du traitement repose sur l'intérêt légitime de l'Agence / du Réseau. Elles sont conservées jusqu'à demande de suppression et sont destinées à l'Agence / au Réseau. Conformément à la loi « informatique et libertés », vous disposez des droits d’accès, de rectification, d’effacement, d’opposition, de limitation et de portabilité de vos données. Vous pouvez retirer votre consentement à tout moment en contactant directement l’Agence / Le Réseau. Consultez le site https://cnil.fr/fr pour plus d’informations sur vos droits. Si vous estimez, après avoir contacté l'Agence / le Réseau, que vos droits « Informatique et Libertés » ne sont pas respectés, vous pouvez adresser une réclamation à la CNIL. Nous vous informons de l’existence de la liste d'opposition au démarchage téléphonique « Bloctel », sur laquelle vous pouvez vous inscrire ici : https://www.bloctel.gouv.fr Dans le cadre de la protection des Données personnelles, nous vous invitons à ne pas inscrire de Données sensibles dans le champ de saisie libre.
    Ce site est protégé par reCAPTCHA, les Politiques de Confidentialité et les Conditions d'Utilisation de Google s'appliquent.

    Nos outils
    Imprimer Imprimer
    Partager le bien
    Calculatrice financière

    * Champ obligatoire

    Partager l'annonce

    * champs obligatoires

    Les informations recueillies sur ce formulaire sont enregistrées dans un fichier informatisé par La Boite Immo agissant comme Sous-traitant du traitement pour la gestion de la clientèle/prospects de l'Agence / du Réseau qui reste Responsable du Traitement de vos Données personnelles. La base légale du traitement repose sur l'intérêt légitime de l'Agence / du Réseau. Elles sont conservées jusqu'à demande de suppression et sont destinées à l'Agence / au Réseau. Conformément à la loi « informatique et libertés », vous disposez des droits d’accès, de rectification, d’effacement, d’opposition, de limitation et de portabilité de vos données. Vous pouvez retirer votre consentement à tout moment en contactant directement l’Agence / Le Réseau. Consultez le site https://cnil.fr/fr pour plus d’informations sur vos droits. Si vous estimez, après avoir contacté l'Agence / le Réseau, que vos droits « Informatique et Libertés » ne sont pas respectés, vous pouvez adresser une réclamation à la CNIL. Nous vous informons de l’existence de la liste d'opposition au démarchage téléphonique « Bloctel », sur laquelle vous pouvez vous inscrire ici : https://www.bloctel.gouv.fr Dans le cadre de la protection des Données personnelles, nous vous invitons à ne pas inscrire de Données sensibles dans le champ de saisie libre.
    Ce site est protégé par reCAPTCHA, les Politiques de Confidentialité et les Conditions d'Utilisation de Google s'appliquent.

    Partager avec vos proches

    Facebook Facebook
    Messenger Messenger
    Twitter Twitter
    WhatsApp WhatsApp
    LinkedIn LinkedIn
    Copier le lien Copier le lien
    Détail des diagnostics énergétiques
    DPE GES
    DPE ANCIENNE VERSION
    Autres biens

    Ces biens peuvent aussi vous intéresser

    Appartement

    Appartement

    (13002)
    Voir le bien
    Appartement

    Meublé

    (13002)
    Voir le bien
    Contacter l'agence

    Remplissez ce formulaire, nous ferons de notre mieux pour vous répondre dans les meilleurs délais.

    Guis Immobilier
    04 96 11 22 88
    E-mail fx.guis@guisimmobilier.fr

    2B BD LATIL 13008 Marseille

    Agence Lord Duveen
    04 96 11 22 81
    E-mail contact@guisimmobilier.fr

    Agence 8 ème
    33 rue Lord Duveen 13008 Marseille

    TRAD_MELTEM_voscoordonnees
    TRAD_MELTEM_voredemande
    Règlementation

    * Champ obligatoire

    Les informations recueillies sur ce formulaire sont enregistrées dans un fichier informatisé par La Boite Immo agissant comme Sous-traitant du traitement pour la gestion de la clientèle/prospects de l'Agence / du Réseau qui reste Responsable du Traitement de vos Données personnelles. La base légale du traitement repose sur l'intérêt légitime de l'Agence / du Réseau. Elles sont conservées jusqu'à demande de suppression et sont destinées à l'Agence / au Réseau. Conformément à la loi « informatique et libertés », vous disposez des droits d’accès, de rectification, d’effacement, d’opposition, de limitation et de portabilité de vos données. Vous pouvez retirer votre consentement à tout moment en contactant directement l’Agence / Le Réseau. Consultez le site https://cnil.fr/fr pour plus d’informations sur vos droits. Si vous estimez, après avoir contacté l'Agence / le Réseau, que vos droits « Informatique et Libertés » ne sont pas respectés, vous pouvez adresser une réclamation à la CNIL. Nous vous informons de l’existence de la liste d'opposition au démarchage téléphonique « Bloctel », sur laquelle vous pouvez vous inscrire ici : https://www.bloctel.gouv.fr Dans le cadre de la protection des Données personnelles, nous vous invitons à ne pas inscrire de Données sensibles dans le champ de saisie libre.
    Ce site est protégé par reCAPTCHA, les Politiques de Confidentialité et les Conditions d'Utilisation de Google s'appliquent.

    Se connecter
    Espace propriétaire Propriétaires syndic Propriétaires gestion
    Visiter le site Action patrimoine
    Adhérents

    © 2026 | Tous droits réservés | Traduction powered by Google |

    • Nos honoraires
    • Plan du site
    • Mentions légales
    • Partenaires
    • Admin
    • Politique RGPD
    • LinkedIn

    Comme beaucoup, notre site utilise les cookies

    On aimerait vous accompagner pendant votre visite. En poursuivant, vous acceptez l'utilisation des cookies par ce site, afin de vous proposer des contenus adaptés et réaliser des statistiques !

    Paramétrer

    Cookies fonctionnelsCes cookies sont indispensables à la navigation sur le site, pour vous garantir un fonctionnement optimal. Ils ne peuvent donc pas être désactivés.

    Statistiques de visitesPour améliorer votre expérience, on a besoin de savoir ce qui vous intéresse !
    Les données récoltées sont anonymisées.

    ?

    Google Analytics

    En savoir plus
    • Acheter
    • Louer à l'année
    Créez votre alerte e-mail
    Dans un rayon de
      Loyer
      Mini €
      Maxi €
      Surface
      Mini m²
      Maxi m²

      Particularites

      Equipements

      Exposition

      Afficher les biens

      Faites estimer votre bien par un professionnel

      Estimer votre bien